- 10 Gennaio 2026 02:07
Panoramica
- 73 m²
Descrizione
SOMMINISTRAZIONE TIP 4 TORINO – €. 7.000 – Rif. VI 283
Si propone in vendita AUTORIZZAZIONE di somministrazione tip 4. L’acquisto dovrà essere fatto tramite partecipazione in asta pubblica. L’autorizzazione potrà essere trasferita nella stessa zona o previa verifica anche ad altre.
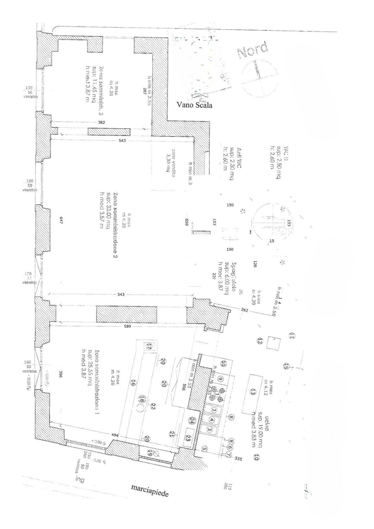
Le immagini, planimetria hanno scopo puramente illustrativo. La localizzazione è generica.
Per ulteriori informazioni contattare Arch. Viviana Vergìni T: 348.49.500.75
***__________________________________________***
Siamo costantemente alla ricerca di IMMOBILI e ATTIVITA’ COMMERCIALI/INDUSTRIALI su Torino e Provincia da proporre alla nostra clientela, pertanto se dovete vendere, non esitate a valutare la nostra professionalità. Contattateci al 3484950075 per una visita presso di Voi o un appuntamento presso il nostro studio in C.so Inghilterra 39 a Torino. Visitate il nostro sito www.due-vi.it. Due Vi Home & Factory è uno studio immobiliare preparato e professionale, attento alle esigenze del cliente. Ci occupiamo con impegno e passione, di COMPRAVENDITA IMMOBILIARE, COMMERCIALE, INDUSTRIALE, CESSIONE D’AZIENDA e ASTE GIUDIZIARIE, mettendo a disposizione del Cliente il proprio sito, i propri profili social Facebook e Instagram e i principali portali immobiliari, con lo scopo di offrire il migliore e più efficace servizio.
Dati: 16/01/2026
Numero:
Dettagli
-
ID della proprietà VI283
-
Prezzo €. 7.000,00
-
Superficie 73 m²
-
Stanze 2
-
Tipologia ristorante, attività
-
Contratto vendita



