Ristorante in vendita – €. 127.000,00 – rif. VI287
  • €. 127.000,00

Panoramica

  • 195 m²
  • Superficie

Descrizione

TRATTORIA E GASTRONOMIA ORBASSANO – €. 127.000 – Rif. VI 287
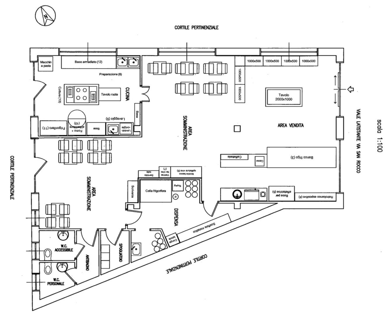
Cedesi attività storica di ristorazione tip 4 + gastronomia, operativa e completamente attrezzata, avviata dal 2012, con clientela fidelizzata.
Caratteristiche principali
• Locale funzionante e organizzato di 195 mq
• Attrezzature professionali incluse
• Ottima visibilità e continuità lavorativa
• Ideale per gestione familiare o giovane imprenditore
Dati economici
• Fatturato medio annuo: ~177.000 € negli ultimi 4 anni
• Attività con redditività dimostrabile
• Locazione euro 1.800/mese con contratto recente
• Parcheggio privato interno per i clienti
Motivo vendita: pensionamento

Per ulteriori informazioni contattare Arch. Viviana Vergìni T: 348.49.500.75
***__________________________________________***
Siamo costantemente alla ricerca di IMMOBILI e ATTIVITA’ COMMERCIALI/INDUSTRIALI su Torino e Provincia da proporre alla nostra clientela, pertanto se dovete vendere, non esitate a valutare la nostra professionalità. Contattateci al 3484950075 per una visita presso di Voi o un appuntamento presso il nostro studio in C.so Inghilterra 39 a Torino. Visitate il nostro sito www.due-vi.it. Due Vi Home & Factory è uno studio immobiliare preparato e professionale, attento alle esigenze del cliente. Ci occupiamo con impegno e passione, di COMPRAVENDITA IMMOBILIARE, COMMERCIALE, INDUSTRIALE, CESSIONE D’AZIENDA e ASTE GIUDIZIARIE, mettendo a disposizione del Cliente il proprio sito, i propri profili social Facebook e Instagram e i principali portali immobiliari, con lo scopo di offrire il migliore e più efficace servizio.

 

Dati:

Numero:

Planimetrie

Dettagli

  • ID della proprietà VI287
  • Prezzo €. 127.000,00
  • Superficie 195 m²
  • Stanze 5
  • Tipologia ristorante, attività
  • Contratto vendita

Caratteristiche

Annunci simili