- 15 Aprile 2026 08:26
Appartamento in vendita – €. 245.000,00 – rif. VI201
- €. 245.000,00
Appartamento in vendita – €. 245.000,00 – rif. VI201
- €. 245.000,00
Panoramica
- 0
- 2
- 125 m²
- 1920
Descrizione
APPARTAMENTO – VIA CAMILLO RICCIO – €. 245.000 – rif VI 201
Cerchi l’indipendenza e il verde senza rinunciare alla comodità della città? In Via Camillo Riccio, nel cuore di Mirafiori Sud, proponiamo in vendita un’interessante soluzione abitativa situata in una palazzina indipendente di soli tre piani.
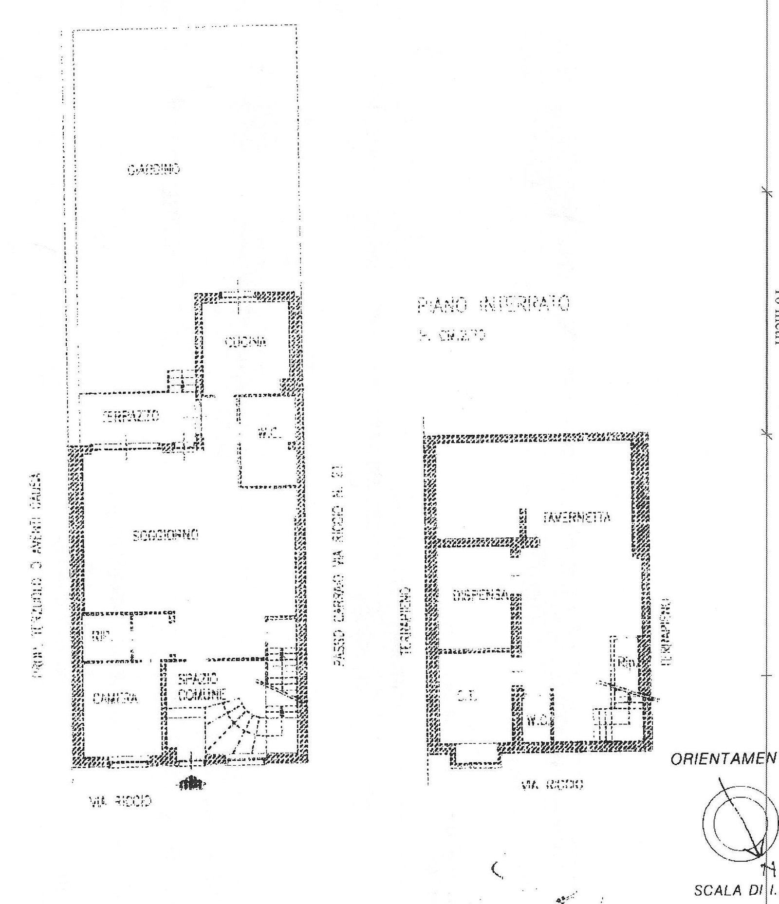
Proponiamo in vendita appartamento al piano terreno di circa 130 mq, composto da salone doppi, cucina, camera, ripostiglio, bagno, balcone, giardino privato di 129 mq e tavernetta al piano inferiore.
La palazzina, risalente al 1920 e ristrutturata integralmente nel 1977, si presenta in discreto stato manutentivo. È inserita in un contesto residenziale tranquillo e strategico:
• A soli 8 minuti dalla suggestiva Palazzina di Caccia di Stupinigi.
• Comodissimo all’accesso della tangenziale.
• Circondato da parchi pubblici e ben servito dai mezzi di trasporto.
Per informazioni Arch. Viviana Vergìni T: 3484950075
***__________________________________________***
Siamo costantemente alla ricerca di IMMOBILI e ATTIVITA’ COMMERCIALI/INDUSTRIALI su Torino e Provincia da proporre alla nostra clientela, pertanto se dovete vendere, non esitate a valutare la nostra professionalità. Contattateci al 3484950075 per una visita presso di Voi o un appuntamento presso il nostro studio in C.so Inghilterra 39 a Torino. Visitate il nostro sito www.due-vi.it. Due Vi Home & Factory è uno studio immobiliare preparato e professionale, attento alle esigenze del cliente. Ci occupiamo con impegno e passione, di COMPRAVENDITA IMMOBILIARE, COMMERCIALE, INDUSTRIALE, CESSIONE D’AZIENDA e ASTE GIUDIZIARIE, mettendo a disposizione del Cliente il proprio sito, i propri profili social Facebook e Instagram e i principali portali immobiliari, con lo scopo di offrire il migliore e più efficace servizio.
Dati:
Numero:
Planimetrie
Planimetrie
Descrizione:
Dettagli
-
ID della proprietà VI201
-
Prezzo €. 245.000,00
-
Superficie 125 m²
-
Camere da letto 0
-
Stanze 4
-
Bagni 2
-
Anno di costruzione 1920
-
Tipologia appartamento, residenziale
-
Contratto vendita
Caratteristiche
Classe Energetica
-
Classe energetica: F
-
Indice di prestazione energetica globale: 0.00 kwm2
- A+
- A
- B
- C
- D
- E
- 0.00 kwm2 | Classe energetica FF
- G
- H
